Belo Horizonte foi uma cidade planejada para ser a nova capital de Minas Gerais após a Proclamação da República em 1889. Começou a ser construída em 1893 e inaugurada em 12 de dezembro de 1897. A planta original tinha um perímetro urbano formado por ruas retas cortadas por ruas paralelas que se cruzavam dentro da Avenida do Contorno. Nos arredores, construções adicionais como cemitério, hipódromo, sítios e as moradias dos operários construtores, com a intenção inicial de serem casas temporárias .

Fora desse perímentro urbano foram criadas áreas agrículas responsáveis pelo abastecimento de alimentos da nova capital. “A criação das Colônias Agrícolas foi uma iniciativa da Repartição de Terras e Colonização do Governo do Estado, cujo Inspetor, o engenheiro Carlos Leopoldo Prates, daria o próprio nome a uma das cinco colônias instituídas” (Silva, 2024, p. 33). Na Colônia Carlos Prates passava a antiga Rua Contagem (atualmente Rua Padre Eustáquio), principal via de ligação entre as cidades de Belo Horizonte e Contagem.
Próximo de 1911, a maior parte da população dessa Colônia era formada de imigrantes italianos. Para fazer a ligação entre a colônia agrícola e o centro, foi implementada a linha de bonde na Rua Contagem. Com o crescimento populacional e urbano, essas colônias foram transformadas em áreas suburbanas e dividias em pequenas vilas operárias, que depois viraram bairros. A Vila Progresso passou a ser denominada de Bairro Padre Eustáquio em 1949, em homenagem ao padre holandês da Igreja Católica Eustáquio van Lieshout.

A região foi passando por diversar transformações ao longo do tempo. Em 1944, um terreno da fazenda Celeste Império, de propriedade de Alípio de Melo, foi destinada para a construção do Aeroporto Carlos Prates e atender uma demanda do Aeroclube do Estado de Minas Gerais para o uso da aviação civil e comercial. A Igreja dos Sagrados Corações, popularmente conhecida como Igreja Padre Estáquio, foi inaugurada em 1949.
A Rua Contagem já foi considerada o corredor dos cinemas de BH. Haviam quadro na região: São Carlos, Azteca, Padre Eustáquio e Progresso. O Cine Azteca foi inaugurado em 1950, com uma estrutura de sala de cinema com 758 lugares. Funcionava no número 120, em frente a praça São Francisco das Chagas. “Os jovens namoravam nos bancos em frente à igreja à espera de filmes […]” (Jornal Padre Eustáquio, 2018).

Na década de 1960 a urbanização avança e é feito o calçamento da Rua Contagem, atual Padre Eustáquio. O Azteca não resistiu a especulação mobiliária e a concorrência de outros cinemas, fechando as portas na década de 1970. Depois o prédio foi demolido.

FEIRA COBERTA
1976
“Nas décadas de 50 e 60 a área da FECOPE fazia parte de uma fazenda, não havia nada além de casa da fazenda e do ponto final do bonde. Só depois de muito tempo que os proprietários venderam o terreno e se iniciou a feira” (Greco, 2022, p. 55). O espaço passou a ser um lugar de lazer, de brincadeiras de crianças e do funcionamento de uma feira-livre de produtos hortifrutigranjeiros, carnes e temperos.
Em 1961, a Prefeitura publica uma lei que previa a desapropriação da Vila Padre Eustáquio para a construção um Mercado Municipal:
Art. 1º – Fica o Prefeito autorizado a desapropriar os lotes 15 (quinze), 16 (dezesseis), 17 (dezessete) e 18 (dezoito), do quarteirão 23 (vinte e três), da Vila Padre Eustáquio, para a construção de Mercado Municipal e declarados de utilidade pública pelo Decreto n 831, de 30 de março de 1960. (Lei 869, de 4 abr. 1961)
A desapropriação não aconteceu e a feira continou funcionando. Em 1975, um novo projeto de abastecimento da Prefeitura foi apresentado, planejando a construção dos mercado de Santa Tereza, do Cruzeiro, do Barroca e do Padre Eustáquio (Greco, 2022, p. 57). O argumento era que as feiras-livres atrapalhavam o trânsito de veículos e pedestres, além de deixar uma “quantidade enorme de sujeira que restava nas vias públicas após a realização de cada feira” (Relatório PBH 1975 apud Greco, 2022, p. 58).
Embora tenha sido feita aquisição para todos esses mercados, o do Padre Eustáquio não chegou a ser construído. A Prefeitura mantém entendimento com a COBAL (Companhia Brasileira de Alimentos) para realizar ali uma experiência pioneira – a de uma feira confinada, com todas instalações necessárias, conjugada com um ginásio esportivo. O projeto arquitetônico foi elaborado por técnicos daquela empresa federal, processando-se a assinatura de convênio que regula a participação do Município e da COBAL no empreendimento. (Relatório PBH 1975 apud Greco, 2022, p. 59)
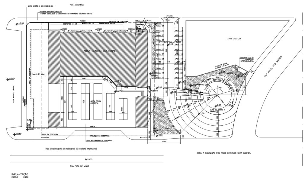
A Prefeitura desapropriou o terreno entre as ruas Pará de Minas, Monte Líbano, Jacutinga e Professor Tito Novais. Em 1976 era inaugurada a Feira Coberta do Padre Estáquio (FECOPE) na Rua Pará de Minas, 851, Bairro Padre Eustáquio. “[…] a partir da década de 1950 Belo Horizonte recebeu grande fluxo populacional e o bairro Padre Eustáquio foi um dos que abrigou muitos dos novos moradores. Como não havia mercados populares por perto, a Prefeitura iniciou aconstrução da Feira Coberta do Bairro Padre Eustáquio com o objetivo de atender ao abastecimento da região noroeste da cidade” (Souza, 2020).


A FECOPE mantinha barracas e bares, que realizavam feiras de produtos hortifrutigranjeiros aos sábados e domingos. A feira se consolidou no bairro também como um espaço de lazer e esportes, devido as quadras esportivas, shows musicais, apresentações artísticas locais, encontros de capoeira, entre outras manifestações culturais.

A autorização para o uso e comercialização no espaço era concedida através de licitação pública realizada pela Prefeitura. A feira estava vinculada ao CEASA até 1994, quando passou a ser administrada pela Secretaria Municipal de Abastecimento (Fernandes, 2009, p. 44).
“A partir dos anos 2000, o surgimento de redes de supermercados e sacolões nas proximidades esvaziou a feira. Muitos feirantes tiverem que entregar seus boxes e o local caiu no ostracismo” (O Tempo, 2022). Reportagens da época trazem depoimentos sobre as dificuldades por que a feira passava. Os gastos com aluguel, problemas de infraestrutura (piso, parte elétrica, hidráulica e telhado), a concorrência com o Sacolão Abastecer e a chegada de um Supermercado fez as vendas caírem. Se no início eram cerca de 100 permissionários, a crise fez com que muitos feirantes fechassem os seus boxes, passando a ter apenas 35 empreendimentos abertos. Havia o temor de que essa situação contribuísse para o fechamento da Feira Coberta.
O espaço ocioso passou a ser cobiçado. Em 2001, a Associação Comunitária do Bairro Dom Bosco enviou para a Regional Noroeste um projeto para desativação da FECOPE. A própria Regional tinha planos de se mudar para uma estrutura própria e em 2006 passou a se especular em criar um centro administrativo no lugar da feira.
Os comerciantes se organizaram em uma Associação dos Permissionários da Feira do Bairro Padre Eustáquio e sempre que uma tentativa de fechamento acontecia, eles faziam um movimento de coleta de abaixo-assinado de apoio e divulgavam a tentativa de fechamento na imprensa. A Associação entravam com recursos jurídicos e faziam reuniões com Prefeitura e vereadores.
IMPLANTAÇÃO DO CENTRO CULTURAL PADRE EUSTÁQUIO (CCPE)
A comunidade do bairro Padre Eustáquio cobrava da Prefeitura de Belo Horizonte a implantação de um ponto de cultura na região. Segundo o diretor de Equipamentos Culturais da Fundação Municipal de Cultura em 2006, Bernardo Machado, essa reivindicação já acontecia desde 1994.
A solução veio através do Orçamento Participativo (OP), onde o projeto aprovado previa uma reforma na infraestrutura e revitalização do entorno da feira, além da implantação de um centro cultural com administração, biblioteca pública, salas de atividades artísticas e um estacionamento. Devido ao esvaziamento da feira, a ideia era dividir a FECOPE em duas partes, sendo metade concedida à gestão da Cultura e a outra metade, reforma e remanejamento dos boxes e as lojas da feira. Porém essa situação provocou um conflito e apreensão entre os comerciantes pelo uso do espaço compartilhado, sendo tema de audiência pública e reinvindicação de melhor condições para os feirantes: “Os bares da feira serão transformados em estacionamento” (CMBH, 2006).
A ideia prosperou e houve a aprovação do OP para a construção de um centro cultural na FECOPE.
OP NOROESTE 2003/2004
Empreendimento 55 – Centro Cultural do Padre Eustáquio
Início: agosto/2007
Conclusão: setembro/2008
Investimentto: R$ 2.102.422,48
O que foi feito: revitalização do entorno da feira coberta, novo layout das barracas e instalações elétricas, construção de sanitários públicos e biblioteca pública, estacionamento, sala para oficina de artes cênicas, sala para artes plásticas, administração, almoxarifado, depósitos, cozinha e pátio interno.
Fonte: https://prefeitura.pbh.gov.br/obras-e-infraestrutura/informacoes/orcamento-participativo/obrasconcluidas/opnoroeste2003-2004
O Empreendimento 55 iniciou as obras em agosto de 2007, sendo concluído em setembro de 2008. Foram investidos R$ 2.102.422,48.
A FECOPE foi reformada e entregue em 28 de agosto de 2008, contando com estabelecimentos comerciais de laticínios, artesanato, vestuário, açougue, produtos de higiene e limpeza. O CCPE é inaugurado em dia 6 de dezembro de 2008, em espaço compartilhado com a feira. Sua entrada principal está na Rua Jacutinga, 821, e faz parte da gestão da Fundação Municipla de Cultura (FMC).

CONCESSÃO DA FECOPE
Em 27 de setembro de 2017, a gestão do prefeito Alexandre Kalil criou um grupo de trabalho para a concessão dos mercados municipais através do Decreto Municipal n. 16.726, grupo formado por representantes das Secretarias de Fazenda, Desenvolvimento Econômico, Assuntos Institucionais e Comunicação Social, Planejamento, de Governo, Assistência Social, de Políticas Urbanas e Cultura.
DECRETO Nº 16.726, DE 27 DE SETEMBRO DE 2017.
Institui grupo de trabalho para realizar estudos e propor medidas para a recuperação e gestão dos mercados municipais.
O Prefeito de Belo Horizonte, no exercício da atribuição que lhe confere o inciso VII
do art. 108 da Lei Orgânica,
DECRETA:
Art. 1º – Fica instituído grupo de trabalho com o objetivo de realizar estudos e propor medidas para a recuperação e gestão dos mercados municipais de Belo Horizonte.
Art. 2º – São atribuições do grupo de trabalho:
I – identificar oportunidades para o desenvolvimento econômico, social e sustentável e que propicie a recuperação dos mercados municipais como ponto de convivência para a comunidade;
II – elaborar diagnóstico da atual situação dos mercados municipais;
III – propor a definição de estratégias para a atuação intersetorial que incluam o Município,
a sociedade e demais órgãos do Poder Público nas iniciativas relacionadas aos mercados municipais.
Art. 3º – O grupo de trabalho a que se refere o art. 1º será composto por membros, titulares
e suplentes, a serem indicados pelos seguintes órgãos e entidades:
I – Secretaria Municipal de Fazenda, que o coordenará;
II – Secretaria Municipal de Desenvolvimento Econômico;
III – Secretaria Municipal de Assuntos Institucionais e Comunicação Social;
IV – Secretaria Municipal de Planejamento, Orçamento e Gestão;
V – Secretaria Municipal de Governo;
VI – Secretaria Municipal de Assistência Social, Segurança Alimentar e Cidadania;
VII – Secretaria Municipal de Cultura.
§ 1º – Os nomes dos membros titulares e seus respectivos suplentes serão indicados pelo titular do órgão ou entidade e deverão ser encaminhados para o representante da Secretaria Municipal de Fazenda.
§ 2º – O coordenador do grupo de trabalho poderá convidar representantes da sociedade civil, de outros órgãos ou entidades públicas ou privadas para participar das reuniões e subsidiar tecnicamente as discussões.
Art. 4º – A atividade do grupo de trabalho será considerada de interesse público, sendo vedada a remuneração aos seus membros.
Art. 5º – O grupo concluirá os trabalhos no prazo de cento e oitenta dias, a contar da publicação deste Decreto.
Parágrafo único – O prazo de que trata o caput poderá ser prorrogado por decisão do coordenador do grupo de trabalho.
Art. 6º – Normas complementares necessárias ao funcionamento do grupo de trabalho poderão ser definidas por meio de portaria do Secretário Municipal de Fazenda.
Art. 7º – Este Decreto entra em vigor na data de sua publicação.
Belo Horizonte, 27 de setembro de 2017.
Alexandre Kalil
Prefeito de Belo Horizonte
Fonte: DOM – 28/9/2017, p. 1
“O processo de reforma e requalificação dos Mercados Municipais teve início em 2017, com a criação de um grupo de trabalho intersetorial. O grupo tem como objetivo definir diretrizes e políticas públicas para a revitalização dos espaços, preservando as funções de mercado, com melhoria na conservação e na manutenção. Além disso, esses espaços devem contar com áreas multiuso e de convivência, respeitando as especificidades de cada região.
Foram definidos os modelos de concessão e as diretrizes de uso dos espaços. Em 2018, um Procedimento de Manifestação de Interesse (PMI) foi aberto para obter estudos, levantamentos, dados técnicos, e outras informações necessárias à estruturação do projeto de concessão comum, buscando o desenvolvimento econômico, social e sustentável.
Em setembro de 2019, a PBH abriu uma Consulta Pública relativa à concessão do Mercado Distrital de Santa Tereza e da Feira Coberta do Padre Eustáquio. Parte dos questionamentos, sugestões e contribuições foi recebida e incorporada ao Edital de Licitação. […]
A Prefeitura iniciou em 2019 um processo para a concessão para a iniciativa privada para a gestão, reforma, requalificação e manutenção da Feira Coberta do Bairro Padre Eustáquio. A vencedora do edital (que também tem como objeto da concessão o Mercado Distrital de Santa Tereza) tem como contrapartida fazer a construção do novo Centro Cultural Padre Eustáquio“. (PBH, 2022)
2018 – PMI MERCADOS MUNICIPAIS
Em 2018 é publicado pela PBH Ativos o Procedimento de Manifestação de Interesse – PMI.
O Aviso foi publicado no DOM do dia 7 de março de 2018, com o objetivo de orientar a participação de interessados na estruturação de projetos de CONCESSÃO COMUM para reforma, qualificação, manutenção e gestão dos Mercados Municipais de Belo Horizonte com vistas ao desenvolvimento econômico, social e sustentável destes espaços públicos.
Nessa PMI estão documentados a proposta de Edital, o Termo de Referência e anexos dos mercados, entre eles, da FECOPE. No Anexo VI, sobre a Feria Coberta, lê-se:
3- O Centro Cultural Padre Eustáquio, instalado em área contígua à feira, é dedicado aos moradores da região e é equipado com biblioteca, salas para oficinas de artes plásticas e cênicas. Intervenções no terreno deverão prever área para a manutenção do Centro, bem como a possibilidade de sua expansão. A área da Feira configura potencial para ser explorada como espaço cultural, com usos complementares ao Centro, e incorporá-los na rotina de mais frequentadores da região. A proposta pode considerar a retirada da grade que separa os dois espaços ou sua reformulação de layout, e a implantação de espaços destinados a apresentações e manifestações culturais, dando continuidade à possibilidade de atravessamento de quadra existente.

Plantas e desenhos técnicos: https://drive.google.com/drive/folders/0B-7anZTMiSo5d3I1YU5FYkJnQlU?usp=sharing
Haviam 6 mercados na PMI: Mercado Distrital do Cruzeiro; Central de Abastecimento do Bairro São Paulo; Mercado da Lagoinha; Feira Coberta do Padre Eustáquio; Mercado Distrital de Santa Tereza; e Mercado Novo.
No Comunicado n. 3 da PMI, três empresas apresentaram cadastro de interesse. Nenhum dos estudos apresentados estava relacionado a Feira Coberta do Padre Eustáquio.

Notícia PBH: Prefeitura aprimora a gestão dos mercados municipais
Foi publicado no Diário Oficial do Município (DOM) de hoje, dia 7 de março, o edital de Procedimento de Manifestação de Interesse (PMI) para o aprimoramento da gestão dos mercados municipais.
O PMI permite que o Poder Executivo Municipal receba e analise diferentes propostas e manifestações de interesse para a concessão de seis espaços: Mercado Distrital do Cruzeiro; Central de Abastecimento Municipal (Feira do Bairro São Paulo); Mercado da Lagoinha; Feira Coberta do Padre Eustáquio (FECOPE); Mercado Distrital de Santa Tereza; Mercado Novo (4ª laje). Os interessados deverão arcar com reformas, qualificação dos espaços, bem como a manutenção e gestão dos mercados.
Poderão participar desse Procedimento de Manifestação de Interesse, pessoas físicas, pessoas jurídicas de direito privado, associações, organizações do terceiro setor, cooperativas, entre outras entidades, sendo necessário o preenchimento de um termo de cadastramento. O prazo para a entrega do termo é de até 30 (trinta) dias contados a partir da data de publicação do edital no Diário Oficial do Município.
O edital de PMI dos mercados municipais é resultado do trabalho integrado das secretarias municipais de Fazenda, Desenvolvimento Econômico, Assuntos Institucionais e Comunicação Social, Planejamento, Orçamento e Gestão, Governo, Assistência Social, Segurança Alimentar e Cidadania, Política Urbana e Cultura.
Prefeitura de BH prepara a concessão de seis mercados públicos da capital
“Segundo o secretário da Fazenda da capital, Fuad Noman, o edital é o início de um processo que deve culminar com a abertura de processo licitatório de concessão dos mercados públicos a terceiros.
‘Nos queremos que os mercados de Belo Horizonte se transformem em negócios atrativos para empreendedores, com sustentabilidade financeira, mas também para as comunidades do entorno, a cidade e a população em geral, respeitando as características e vocações de cada espaço’, afirmou o secretário” (Jornal Hoje em Dia, 2018).
Projeto de Lei 747/19
Autoria: Executivo: Mensagem nº 5, de 15/04/2019
Ementa: Autoriza o Poder Executivo a outorgar concessão comum de mercados municipais e dá outras providências.
Assunto: Autorização, concessão, bem público, mercado, feira, autorização, licitação, processo, utilização, edital, custeio, funcionamento, prazo, obra, repasse, reajustamento, contrato, revogação, [ Mercado Distrital do Cruzeiro. Central de Abastecimento Municipal. Centro de Referência em Segurança Alimentar e Nutricional. Mercado Popular da Lagoinha. Feira Coberta do Padre Eustáquio. Mercado Distrital de Santa Tereza. Mercado Novo. Lei 9537/2008. Lei 9.537/08 ].
Autoriza o Poder Executivo a outorgar concessão comum de mercados municipais e dá outras providências.
Art. 1° — Fica o Poder Executivo autorizado a outorgar, mediante processo licitatório,
concessão comum, nos termos da Lei Federal n° 8.987, de 13 de fevereiro de 1995, dos seguintes espaços públicos:
I — Mercado Distrital do Cruzeiro;
II — Central de Abastecimento Municipal;
III — Centro de Referência em Segurança Alimentar e Nutricional — Mercado Popular da Lagoinha;
IV — Feira Coberta do Padre Eustáquio;
V — Mercado Distrital de Santa Tereza;
VI — 4° andar do Mercado Novo (laje).
EMENDA ADITIVA N. 16
O art. 2°, do Projeto de Lei n° 747/2019 fica acrescido do seguinte parágrafo único:
“Parágrafo único – O edital de licitação trará, no mínimo, as seguintes exigências ao
concessionário, para cada espaço público descrito no art. 1° desta lei:
I – Garantir a preservação das atividades típicas dos mercados, priorizando a produção da agricultura familiar, os produtos agroecológicos e orgânicos e das economias solidária e criativa;
II – Garantir e ampliar os usos destes equipamentos públicos como espaços de convivência comunitária, em especial pelo desenvolvimento de atividades culturais, artísticas e de lazer;
III – Considerar os aspectos socioculturais e urbanísticos da região do empreendimento e de seu entorno;
IV – Criar condições de sustentabilidade do empreendimento;
V – Criar condições para expansão da atividade socioeconômica;
VI – Respeitar as políticas públicas definidas para cada local.”.
Votação 1º Turno – CMBH
03/09/2019
AUDIÊNCIA PÚBLICA NO CCPE
19/11/2019
“A Comissão também aprovou o RC 1324/2019, que solicita a realização de audiência pública para debater a concessão para reforma, requalificação, manutenção e gestão da Feira Coberta do Padre Eustáquio, além da mudança de local do Centro Cultural Padre Eustáquio, que atualmente funciona na feira. O debate está no âmbito da tramitação do PL 747/2019, de autoria do Executivo, que autoriza o Município a “outorgar concessão comum de mercados municipais”, entre eles a Feira do Padre Eustáquio. O PL chegou à Câmara em abril deste ano e tramita em 1º turno. O requerimento para realização da audiência é de autoria do vereador Arnaldo Godoy (PT), que convidou o secretário Municipal de Cultura, Juca Ferreira, além de representantes da Fundação Municipal de Cultura, do Centro Cultural Padre Eustáquio, da Secretaria Municipal de Assistência Social, Segurança Alimentar e Cidadania e da associação de moradores do Bairro Padre Eustáquio. A audiência será realizada no dia 19 de novembro, às 18h30, na Feira Coberta do Padre Eustáquio que fica na Rua Pará de Minas, 821, Padre Eustáquio.”
Foi criado em 25 de novembro de 2019 um abaixo-assinado contra a saída do CCPE da FECOPE. Essa petição pública informava que o projeto de lei tinha sido aprovado em 1º turno, aguardando a pauta do 2º turno na CMBH. 199 pessoas assinaram.
“No que toca à Feira Coberta do Padre Eustáquio, conforme se verificou em uma consulta pública sem divulgação nas áreas afetadas, realizada no site da PBH, no qual se vincula o futuro edital de licitação, identificou-se que a pretensão ao se conceder a feira coberta do Padre Eustáquio é transferir o Centro Cultural do Padre Eustáquio, a principio, para na Rua Padre Eustáquio, 120, Carlos Prates, Belo Horizonte/MG, que seria construído um novo centro.”
Fonte: https://peticaopublica.com.br/pview.aspx?pi=BR114547
Votação 2º Turno – CMBH
13/12/2019
LEI 11219/2020
LEI Nº 11.219, DE 12 DE FEVEREIRO DE 2020.
Autoriza o Poder Executivo a outorgar concessão comum de mercados municipais e dá
outras providências.
O Povo do Município de Belo Horizonte, por seus representantes, decreta e eu sanciono a
seguinte Lei:
Art. 1º – Fica o Poder Executivo autorizado a outorgar, mediante processo licitatório, concessão comum, nos termos da Lei Federal nº 8.987, de 13 de fevereiro de 1995, dos seguintes espaços públicos:
I – Mercado Distrital do Cruzeiro;
II – Central de Abastecimento Municipal;
III – Feira Coberta do Padre Eustáquio;
IV – Mercado Distrital de Santa Tereza;
V – 4º andar do Mercado Novo (laje).
Art. 2º – A utilização dos bens públicos a que se refere o art. 1º desta lei será regida pelas diretrizes definidas no edital de licitação.
Parágrafo único – O edital de licitação de que trata o caput deste artigo trará, no mínimo, as seguintes exigências ao concessionário, para cada espaço público relacionado no art. 1º desta lei:
I – garantir a preservação das atividades típicas dos mercados, priorizando a produção da agricultura familiar, os produtos agroecológicos e orgânicos e das economias solidária e criativa;
II – considerar os aspectos socioculturais e urbanísticos da região do empreendimento e de seu entorno;
III – criar condições de sustentabilidade do empreendimento;
IV – criar condições para expansão da atividade socioeconômica;
V – respeitar as políticas públicas definidas para cada local.
Art. 3º – Constitui ônus do concessionário a continuidade do funcionamento das atividades dos permissionários à época formalmente constituídos, nos espaços públicos eventualmente concedidos, por 60 (sessenta) meses, a contar da emissão da
ordem de início das obras, devendo respeitar os valores de repasse financeiro mensal e suas previsões de reajuste, nos termos do instrumento de Permissão Remunerada de Uso então vigente, edital e contrato de licitação.
§ 1º – Nos casos em que a obra comprovadamente impedir o funcionamento das
atividades do ex-permissionário por mais de 30 (trinta) dias, o período em que deixar de funcionar será compensado ao final dos 60 (sessenta) meses com a dilação do prazo na exata proporção.
§ 2º – Para fins do disposto no caput deste artigo, consideram-se permissionários
formalmente constituídos aqueles vencedores das últimas licitações que estejam em exercício de suas atividades até a data de assinatura do contrato com o concessionário.
§ 3º – Os termos de permissão de uso remunerado dos permissionários formalmente
constituídos vigorarão até a data de assinatura do contrato com o concessionário.
Art. 4º – Fica revogada a Lei nº 9.537, de 26 de março de 2008.
Art. 5º – Esta lei entra em vigor na data de sua publicação.
Belo Horizonte, 12 de fevereiro de 2020.
Alexandre Kalil
Prefeito de Belo Horizonte
(Originária do Projeto de Lei nº 747/19, de autoria do Executivo)
O trecho:” II – Garantir e ampliar os usos destes equipamentos públicos como espaços de convivência comunitária, em especial pelo desenvolvimento de atividades culturais, artísticas e de lazer;” foi excluído da lei aprovada na CMBH.
2019 – CONSULTA PÚBLICA
Em 2019, a Secretaria Municipal de Assistência Social, Segurança Alimentar e Cidadania anuncia Consulta Pública:
Consulta Pública, realizada em 25/09/2019. https://prefeitura.pbh.gov.br/smasac/licitacao/consulta-publica-2019
AVISO DE CONSULTA PÚBLICA – EDITAL Nº XXX/2019
CONSULTA PÚBLICA DOS INSTRUMENTOS DE CONCESSÃO PARA REFORMA E REQUALIFICAÇÃO DOS MERCADOS MUNICIPAIS
Processo Administrativo nº 01.056.950/19-35
O Município de Belo Horizonte, por intermédio da Secretaria Municipal de Assistência Social, Segurança Alimentar e Cidadania – SMASAC, torna público a abertura da presente CONSULTA PÚBLICA, nos termos do art. 31, da Lei Federal nº 9.784, de 29 de janeiro de 1991, do Decreto-Lei 4.657, de 4 de setembro de 1942, Lei Municipal nº 9.038, de 14 de janeiro de 2005, dos instrumentos de concessão destinados à reforma, requalificação, manutenção e gestão do Mercado Distrital de Santa Tereza, Feira Coberta do Padre Eustáquio e construção do Novo Centro Cultura do Padre Eustáquio, com vistas ao desenvolvimento econômico, social e sustentável destes espaços públicos, conforme regras definidas no Edital e seus anexos.
DOM: https://dom-web.pbh.gov.br/visualizacao/ato/386396
Na minuta da Concorrência o título: CONCESSÃO PARA REFORMA, REQUALIFICAÇÃO, MANUTENÇÃO E GESTÃO DO MERCADO DISTRITAL DE SANTA TEREZA, DA FEIRA COBERTA DO PADRE EUSTÁQUIO DO MUNICÍPIO DE BELO HORIZONTE– MG E CONSTRUÇÃO DO NOVO CENTRO CULTURAL DO PADRE EUSTÁQUIO.
Modalidade tipo maior oferta de outorga fixa anual a ser paga ao Poder Condedente (PBH), com prazo de concessão de 25 anos.
1. DAS DEFINIÇÕES
e) ÁREA DA CONCESSÃO: área a ser concedida para reforma, requalificação, manutenção e gestão do Mercado Distrital de Santa Tereza, com 12.706,08m² e que está localizada à Rua São Gotardo, 273 – Santa Tereza, e Feira Coberta do Padre Eustáquio, com 4.771,42m² e que está localizada à Rua Pará de Minas, 821 – Padre Eustáquio;
Neste aviso, já estava previsto o lote de transferência do CCPE.
k) CENTRO CULTURAL DO PADRE EUSTÁQUIO: local atualmente ocupado na Feira Coberta do Padre Eustáquio que será transferido para a Rua Padre Eustáquio, nº 120, no bairro Carlos Prates, Belo Horizonte/MG, onde a CONCESSIONÁRIA deverá construir novo Centro Cultural;

O lote da Rua Padre Eustáquio, 120, terreno destinado a Construção do Novo Centro Cultural, é exatamente o mesmo lugar onde antes fucionava o Cine Azteca.
6.3. O CONCESSIONÁRIO terá 16 (dezesseis) meses a contar da EMISSÃO DA ORDEM DE INÍCIO DA FASE 2 para conclusão das obras e entrega do Novo Centro Cultural do Padre Eustáquio, conforme estabelecido no CONTRATO e seus ANEXOS.
RESPOSTAS À CONSULTA PÚBLICA DOS INSTRUMENTOS DE CONCESSÃO PARA REFORMA, REQUALIFICAÇÃO DOS MERCADOS MUNICIPAIS
[3] “1. Por que o Mercado Distrital de Santa Tereza e Feira Coberta do Padre Eustáquio estão sendo oferecidos conjuntamente? Qual a razão para a escolha desse agrupamento, uma vez que o projeto original era (ao menos aparentemente) conceder cada espaço de mercado individualmente?”
RESP.: Por meio do Decreto Municipal nº 16.726, de 27 de setembro de 2017, o Município de Belo Horizonte instituiu um grupo de trabalho para realizar estudos e propor medidas para a recuperação e gestão dos mercados. Em tempo, formado por representantes das Secretarias de Fazenda, Desenvolvimento Econômico, Assuntos Institucionais e Comunicação Social, Planejamento, Governo, Cultura e de Assistência Social, Segurança Alimentar e Cidadania. O grupo de trabalho vem atuando com atribuições de identificar oportunidades para o desenvolvimento econômico, social e sustentável que propicie a recuperação dos mercados municipais, bem como,de elaborar diagnóstico da atual situação e propor definições de estratégias. A decisão de conceder os Mercados de forma conjunta visa garantir maior atratividade para o projeto, do ponto de vista econômico-financeiro. Vale ressaltar que isto não significa que as particularidades de cada equipamento não serão
consideradas, do ponto de vista da gestão.
[5 ] “3. Como foi feita a definição dos prazos para conclusão dos projetos nos diferentes mercados (12 meses para o Mercado Distritial de Santa Tereza; 16 meses para o Centro Cutural Padre Eustáquio e 19 meses para a FECOPE? E por que estes prazos são diferentes? (A única diferença autoexplicativa é referente à posterior conclusão das obras na FECOPE em comparação com o CCPE, visto que o Centro Cultural tem primeiro de se mudar para a nova sede para depois o processo de reforma da FECOPE se concluído).”
Resp.: Os prazos para licenciamento e realização de obras foram estimados no âmbito dos estudos técnicos realizados, conforme as particularidades de cada equipamento.
[6] “4. Como foi escolhido o terreno para onde o Centro Cultural vai ser movido? O terreno em questão fica consideravelmente distante da atual localização do centro cultural, o que pode gerar resistência à mudança por parte dos atuais usuários.”
Resp.: A mudança do espaço foi a alternativa encontrada pela Administração Pública para entregar um equipamento novo e em melhores condições de uso pela comunidade. Quanto à alteração do endereço, ressalta-se que trata-se de terreno do Município de Belo Horizonte, localizado o mais próximo possível do atual endereço do equipamento e dentro do mesmo Território de Gestão Compartilhada.
[26] Comentário e Dúvida: Cabe também perguntar por que somente no Mercado de Santa Tereza. Mesmo que a FECOPE não tenha uma área delimitada para eventos, é possível imaginar algum tipo de exposição ou festividade local ocorrendo na área de circulação e varanda, por exemplo. No mais, dada a distância entre o novo terreno para o CCPE e a FECOPE, imagina-se que haverá alguma demanda de eventos para a feira coberta.
Resp.: O espaço do Novo Centro Cultural do Padre Eustáquio foi planejado para atender a essa demanda. No âmbito dos estudos de viabilidade econômica foi constatado que a FECOPE não comportaria um espaço exclusivo para esse fim. Entretanto, a concessionária pode apresentar proposta de anteprojeto com previsão de área para eventos.
De autoria da Fundação DOIMO
[33] “3. OBJETO
Na descrição do objeto da concessão, sugere-se dar nova redação ao item 3.1 qual seja: “Concessão para reforma, requalificação, manutenção e gestão do Mercado Distrital de Santa Tereza e da Feira Coberta do Padre Eustáquio”. A exclusão da descrição “construção do Novo Centro Cultural do Padre Eustáquio”, pode ensejar o entendimento de concessão de obra pública e não da concessão de operação do Mercado, objeto deste edital. Entendemos que a obrigação de construção do novo centro cultural trata-se de contrapartida à concessão dos serviços de gestão. A exclusão da descrição “conforme descrito no Anexo V – Diretrizes de Anteprojeto” justifica-se uma vez que o conteúdo do anexo deve ser entendido como referencial e não obrigatório.
Nova sugestão de redação para o Item:
Concessão para reforma, requalificação manutenção e gestão do Mercado Distrital de Santa Tereza e da Feira Coberta do Padre Eustáquio.”
Resp.: O instrumento será aprimorado, considerando a referida constribuição.
[36] “II. SUGESTÕES PARA O ANEXO II – CONTRATO
1- INTRODUÇÃO
Conforme sugestão mencionada no Edital, ajustar o objeto de concessão para que a construção do Novo Centro Cultural seja integrante das contrapartidas e não do objeto de concessão, a fim de não ensejar dúvidas que se trata de concessão de serviços e não de obra pública. “
Resp.: O instrumento será aprimorado, considerando a referida contribuição
AUTORIA – CONSELHO DE SEGURANÇA ALIMENTAR E NUTRICIONAL DE BELO HORIZONTE
[58] “(…) Apesar da ciência do Conselho Municipal de Segurança Alimentar e Nutricional (COMUSAN), é de suma importância ressaltar que não houve comunicado sobre o PMI para o Conselho Municipal de Política Cultural de Belo Horizonte (COMUC), a fim de inteirar o mesmo à respeito da proposta de transferência do Centro Cultural do Padre Eustáquio para outro local, proposta essa constante no PMI.”
Resp.: O novo Centro Cultural do Padre Eustáquio não será objeto de concessão. Trata-se apenas de construção de novo espaço como contrapartida do concessionário. Nesse sentido, a administração e condução dos trabalhos relativos ao Centro Cultural do Padre Eustáquio não sofrerão alterações com a concessão. A mudança do espaço foi a alternativa encontrada pela Administração Pública para entregar um equipamento novo e em melhores condições de uso pela comunidade. Quanto à alteração do endereço, ressalta-se que trata-se de terreno do Município de Belo Horizonte, localizado o mais próximo possível do endereço atual do equipamento e dentro do mesmo Território de Gestão Compartilhada.
[60] Proposta de alteração no instrumento contratual:
“45.2 O Comitê Social será composto por 7 (sete) membros, sendo:
a) 01 (um) representante do PODER CONCEDENTE, que o presidirá;
b) 01 (um) representante da CONCESSIONÁRIA;
C) 01 (um) representante indicado pelo Conselho Municipal de Segurança Alimentar e Nutricional – COMUSAN;
d) 01 (um) representante indicado pelo Conselho Municipal de Cultura – COMUC;
e) 01 (um) representante que deverá ser eleito pelos PERMISSIONÁRIOS e inquilinos;
f) 02 (um) representante a serem indicados pelas Associações de Bairro e localidade onde se situa cada um dos MERCADOS.”
Resp.: O instrumento será aprimorado, incluindo um representante do COMUC.
[64] Texto referente ao pedido de esclarecimento quanto ao novo Centro Cultural do Padre Eustáquio “A mudança de endereço do Centro Cultural Padre Eustáquio trouxe dúvidas quanto ao novo local. O imóvel que abrigará o Centro é da prefeitura? A aquisição de novo mobiliário estará no projeto do novo Centro? É possível garantir que a nova construção também tenha novo mobiliário uma vez que o imóbel terá estrutura e/ou proporções diferentes? O novo Centro irá particpar da Concessão do PMI, se sim, quem ficará responsável pela administração? Questionamentos também quanto o fato do citado PMI não tenha sido apresentado ao Conselho Municipal de Política Cultural – COMUC, sendo esta a instância de controle social, de caráter deliberativo, referente aos bens culturais da cidade.
O espaço do novo Centro Cultural do Padre Eustáquio é de propriedade do Município de Belo Horizonte. É o terreno com as dimensões e características necessárias para abrigar a nova edificação e que está localizado o mais próximo possível do atual endereço e dentro do mesmo Território de Gestão Compartilhada.
Em relação à aquisição de novo mobiliário, a sugestão será acatada.
Repita-se, o novo Centro Cultural do Padre Eustáquio não será objeto de concessão, razão pela qual a concessão não interferirá em sua administração.
Por meio do Decreto Municipal nº 16.726, de 27 de setembro de 2017 o Município de Belo Horizonte instituiu um grupo de trabalho para realizar estudos e propor medidas para a recuperação e gestão dos mercados. Em tempo, formado por representantes das Secretarias de Fazenda, Desenvolvimento Econômico, Assuntos Institucionais e Comunicação Social, Planejamento, Governo, Cultura e de Assistência Social, Segurança Alimentar e Cidadania. O grupo de trabalho vem atuando para identificar oportunidades para o desenvolvimento econômico, social e sustentável que propicie a recuperação dos mercados municipais, bem como,de elaborar diagnóstico da atual situação e propor definições de estratégias. Assim a decisão pela realização de um Procedimento de Manifestação de Interesse – PMI dos Mercados foi uma forma de possibilitar ao mercado privado, entidades e quaisquer interessados de apresentar estudos e propostas conforme previsto no edital. O Edital do PMI dos mercados foi publicado em7 de março de 2018 e, nos termos da cláusula 5.1 do edital, o prazo para apresentação de estudos foi de 90 (noventa) dias encerrando-se após prorrogação, em 03 de agosto de 2018. Os estudos apresentados foram objeto de análise e, na sequência, subsidiam as modelagens jurídicas e econômicas-financeiras, que ficaram a cargo da PBH Ativos S.A que, nos termos do art. 2º da Lei Municipal nº 10.003/ 2010 é a empresa competente para auxiliar o Município nos projetos de concessão e PPPs. A conclusão dos trabalhos, conforme diretrizes do Poder Executivo, subsidiaram os documentos que foram submetidos à consulta pública, restando assim, assegurada toda a participação da sociedade civil no processo.
DOM: https://dom-web.pbh.gov.br/visualizacao/ato/390706
Fonte: DOM, 12/12/2019
CONCORRÊNCIA 001/2020: 23 de junho de 2020
OBJETO:
Concessão para gestão, reforma, requalificação e manutenção do MERCADO DISTRITAL DE SANTA TEREZA e da FEIRA COBERTA DO BAIRRO PADRE EUSTÁQUIO do Município de Belo Horizonte, e, a título de contrapartida, a construção do novo CENTRO CULTURAL PADRE EUSTÁQUIO.
https://prefeitura.pbh.gov.br/fazenda/licitacao/concorrencia-001-2020-1
- OBJETO
Concessão para gestão, reforma, requalificação e manutenção do MERCADO DISTRITAL DE SANTA TEREZA e DA FEIRA COBERTA DO BAIRRO PADRE EUSTÁQUIO do Município de Belo Horizonte, e, a título de contrapartida, a construção do novo CENTRO CULTURAL PADRE EUSTÁQUIO, conforme anexos deste edital.
k) CENTRO CULTURAL DO PADRE EUSTÁQUIO: local atualmente ocupado na Feira Coberta do bairro Padre Eustáquio que será transferido para a Rua Padre Eustáquio, nº 120, no bairro Carlos Prates, Belo Horizonte/MG, onde a CONCESSIONÁRIA deverá construir novo Centro Cultural;
15.2.3. A CONCESSIONÁRIA terá 16 (dezesseis) meses a contar da emissão da ORDEM DE INÍCIO DA FASE 2 para conclusão das obras e entrega do Novo Centro Cultural Padre Eustáquio, conforme estabelecido no CONTRATO e seus ANEXOS.
15.2.5. A CONCESSIONÁRIA deve garantir a não intervenção na área do CENTRO CULTURAL DO PADRE EUSTÁQUIO até que o Novo Centro Cultural Padre Eustáquio seja entregue.
UAI MAIS DOIMO: 23 de julho de 2020
Em 23 de julho de 2020 é criada a UAI MAIS DOIMO CONATA INFRACON SPE LTDA, que irá vencer a licitação.
“Apenas um grupo formado por cinco empresas participou da licitação. Segundo a prefeitura, antes da assinatura do contrato, será feita uma análise de toda a documentação apresentada pelo consórcio” (G1 Minas, 30 jul. 2020).
“Segundo o acordo, o consórcio formado pelo Grupo Uai, Fundação Doimo, Conata e Infracon ficará com a gestão e manutenção do Mercado Distrital de Santa Tereza e da Feira Coberta do Padre Eustáquio” (EM, 23 mar. 2022).
AUDIÊNCIA PÚBLICA CMBH
20 de agosto de 2020

Requerimento de Comissão 568/2020
https://cmbh.mg.gov.br/atividade-legislativa/pesquisar-reunioes/2c907f766f673d97016f7fff38510545
Essa reunião teve um maior envolvimento das organizações sociais do bairro Santa Tereza, que já estava em contato com a concessionária, fazendo reinvindicações para o Mercado Santa Tereza, fechado em 2007.
O presidente da comissão, Arnaldo Godoy, lamentou a ausência da SMC e FMC na reunião (-45:37).
Comunidades reivindicam participação em gestão privada de feira e mercado
Em audiência, moradores defenderam a preservação da feira coberta e do mercado distritral, sob gestão privada
Feira coberta do Padre Eustáquio
“No que se refere aos debates sobre a Feira Coberta do Padre Eustáquio, a Comissão destacou que, diferentemente, do Mercado de Santa Tereza, o espaço encontra-se em funcionamento, com a presença de permissionários e com um centro cultural, que oferece atividades para todas as idades. A Prefeitura pretende transferir o centro cultural para outro local, no Bairro Carlos Prates, o que é permitido no edital; mas a comunidade reivindica a permanência do mesmo no Padre Eustáquio, considerando que, com a mudança, o espaço atenderia a outras pessoas e não ao público do bairro.’
Ações programadas
“O vice-presidente da Fundação Doimo, Bernard Siríaco Martins, informou que, em relação aos permissionários, estes irão permanecer na feira coberta, pois já fazem parte da comunidade e da cultura do bairro e da região. Quanto ao centro cultural, afirmou que a Prefeitura procurou encontrar uma área próxima ao Padre Eustáquio para a realocação do espaço, com a construção de instalações mais modernas, acessíveis e funcionais. Para ele, o centro cultural não está diretamente relacionado ao mercado, principalmente porque metade de sua área destina-se ao centro cultural, ou seja, a outra atividade. Portanto, considera que, desta forma, o empreendimento não será efetivo para a cidade, não gerando segurança alimentar, consumo e renda, não atraindo público, nem tampouco novos operadores, mas limitando-se a uma “feirinha” abandonada e precarizada, como avalia a situação atual. Todavia, tranquiliza as pessoas que lá frequentam e os administradores, garantindo que o local será fechado somente quando o outro espaço estiver pronto”.
“Vereadores relataram a preocupação do setor cultural com a localização do novo espaço, para onde será transferido o centro cultural da feira do Padre Eustáquio, considerando que este está situado ao lado de um hospital e em frente a uma igreja, na Rua Padre Eustáquio”.
Vídeo 20ª Reunião Ordinária – Comissão de Educação, Ciência, Tecnologia, Cultura, Desporto, Lazer e Turismo.
Tema da FECOPE a partir (-33:18).
HOMOLOGAÇÃO E ADJUDICAÇÃO CONCORRÊNCIA 001/2020: 2 de setembro de 2020
Processo Nº 01.015.746.20.61
Objeto: Concessão para gestão, reforma, requalificação e manutenção do Mercado Distrital de Santa Tereza e da Feira Coberta do Bairro Padre Eustáquio do município de Belo Horizonte, e, a título de contrapartida, a construção do novo Centro Cultural Padre Eustáquio. O Subsecretário de Administração e Logística, no uso de suas atribuições legais,
HOMOLOGA a licitação relativa ao objeto supra referido para que produza seus efeitos legais e jurídicos, e determina a ADJUDICAÇÃO do seu objeto ao licitante Consórcio
Uai Mais Doimo Conata Infracon.
DOM: 2 set. 2020 (p. 3): https://dom-web.pbh.gov.br/visualizacao/edicao/2844
CONVOCAÇÃO ASSINATURA DE CONTRATO: 25 de setembro de 2020
Processo nº 01.015746.20.61
Objeto: Concessão para gestão, reforma, requalificação e manutenção do Mercado Distrital de Santa Tereza e da Feira Coberta do Bairro Padre Eustáquio do município de Belo Horizonte, e, a título de contrapartida, a construção do Novo Centro Cultural Padre Eustáquio.
A Secretária Municipal de Assistência Social, Segurança Alimentar e Cidadania, no uso de suas atribuições e em referência à CONCORRÊNCIA Nº 001/2020, convoca o Consórcio UaiMaisDoimoConataInfracon, para assinar o contrato, no prazo de 60 (sessenta) dias contados a partir da data desta publicação, respeitados os procedimentos definidos no item 15.3 do edital.
A documentação estabelecida nos subitens 15.3.3 e 15.3.4 deverá ser protocolada até o quinto dia útil anterior ao fim do prazo de assinatura do contrato, no seguinte endereço: Av. Afonso Pena, nº 342 / 5º andar – Centro, Belo Horizonte/MG – Gerência de Licitações e Contratos.
Preenchidas todas as condições exigidas, o Consórcio será informado do local e data para a assinatura do contrato, quando deverá apresentar o documento exigido no subitem 15.3.2 do edital.
DOM: https://dom-web.pbh.gov.br/visualizacao/edicao/2860
COLETIVO CULTURAL NOROESTE BH
8/10/2020 – Criado o Facebook do Coletivo Cultural Noroeste BH para registrar as reuniões, atas e ações do grupo
Luta pela cultura na região noroeste de BH. Em fevereiro de 2025 é reconhecido pelo COMUC BH como Fórum Cultural Noroeste BH.

11/11/2020 – 89º Reunião Ordinária do COMUC:
Pauta: Comitês Sociais dos Mercados Santa Tereza e Padre Eustáquio
Mesmo a SMC integrando o grupo de trabalho intersetorial desde 2017 sobre os Mercados Municipais, que incluía a FECOPE e afetaria o CCPE, somente em 2020 o assunto é pautado no Conselho Municipal de Política Cultural de Belo Horizonte (COMUC), após a assinatura do contrato da concessão.
[…] seguido da Consulta Pública, publicada em 25/09/2019 e encerrada em 24/10/2019, fase em que considerações importantes foram absorvidas, como a definição de que a construção do novo Centro Cultural Padre Eustáquio e a aquisição dos móveis seriam atribuições do concessionário.
Maíra detalhou questões específicas relacionadas ao âmbito da Cultura: Contrapartida da Concessão (construção do Novo Centro Cultural do Padre Eustáquio) que atualmente funciona na FECOPE. A concessionária terá 16 meses à contar da ordem de início da fase 2 para entrega do Novo Centro Cultural Padre Eustáquio. Maíra deixou claro que a data exata de início da fase 2 será revelada assim que houver a assinatura do contrato, quando o plano de trabalho será estabelecido. Enquanto isso a concessionária deve garantir a não intervenção na área do Centro Cultural Padre Eustáquio, até que o novo espaço seja entregue. Em outras palavras, Maíra explicou que o processo da Feira Coberta do Padre Eustáquio será desativado somente quando a concessionária entregar o Novo Centro Cultural em integrais condições de uso. Neste momento, Maíra aproveitou para responder à indagação de Lucas Brandão e afirmou que a comunidade não poderá continuar utilizando o novo espaço para desenvolver suas atividades. A Secretária da SMASAC, explicou que o novo espaço poderá ter atividades culturais na dinâmica de mercado, e que a ideia é que as atividades permanentes do Centro Cultural sejam migradas para o novo Centro Cultural que será construído. Maíra sintetizou que as atividades específicas do mercado que estão previstas envolvem ações típicas de Mercado: contribuir para o abastecimento da cidade; […]
Lucas perguntou à Maíra sobre a possibilidade de se estabelecer um espaço dentro do novo Mercado Padre Eustáquio, pensando na continuidade das atividades exercidas pela comunidade local nas configurações do mercado atual. Maíra explicou que à princípio não e reforçou sobre a construção do Centro Cultural nas proximidades. Maíra argumentou a importância de se diferenciar o que é o Centro Cultural e o que são atividades culturais. Explicou que as atividades enquanto Centro Cultural no âmbito das políticas públicas continuadas e permanentes, serão deslocadas para o Centro Cultural e não ocorrerão mais no Mercado, visto que são dois equipamentos distintos. Pontuou que haverá atividades culturais pontuais no mercado. Fabíola pontuou que as atividades permanentes (como a Biblioteca e atividades de formação) e que as outras atividades culturais devem ser realizadas no Centro Cultural. […]
Fabíola também destacou o cuidado tido ao longo do processo para se encontrar outro espaço para o Centro Cultural capaz de abrigar as atividades com mais conforto, segurança, qualidade, específico para cumprir sua função e que continuasse atendendo à regional. Mencionou também o cuidado tido em selecionar um espaço acessível, bem localizado, em área plana, pensando na mobilidade de pessoas idosas e portadores de necessidades especiais. Concluiu informando que o Centro Cultural, apesar de levar o nome de um bairro, deve atender à toda a regional e salientou a importância em se garantir um atendimento amplo. […]
Lucas Brandão perguntou se este espaço é da Prefeitura. Fabíola respondeu que sim, um lote da Prefeitura de Belo Horizonte será disponibilizado para a construção do Centro Cultural e reiterou que nenhuma atividade será interrompida, visto que a transferência das atividades só ocorrerá quando a obra do novo prédio for entregue. […]
Fabíola destacou que um amplo espectro de atividades realizadas pelo Centro Cultural terão continuidade (exposição, promoção da leitura, oficinas), e que caberá dialogar sobre as atividades que cabem ao Centro Cultural e sobre as atividades-evento que serão realizadas no Mercado. […]
Fabíola complementou que este é mais um ganho do novo Centro Cultural, pois o espaço desde o projeto está levando em conta diretrizes de acessibilidade. O último inscrito da pauta sobre os mercados foi novamente Lucas Brandão, que sugeriu promover um encontro no Centro Cultural Padre Eustáquio e outro no Mercado Santa Tereza para o esclarecimento de dúvidas da comunidade. Maíra pontuou o cumprimento das etapas do cronograma e disse que estão previstas rodadas de diálogos entre a comunidade e os concessionários em cada equipamento, assim que o contrato for assinado.
Ata da 89º Reunião Ordinária do COMUC: DOM https://dom-web.pbh.gov.br/visualizacao/ato/404420
26/11/2020 – O Coletivo participa da reunião do COMUSAN
29 /12/2020: Carta à Secretaria Municipal de Assistência Social, Segurança Alimentar e Cidadania e Secretaria Municipal de Cultura
“Em 2019, uma Audiência Pública, promovida pelo vereador Arnaldo Godoy, deu conhecimento à população usuária do Centro Cultural Padre Eustáquio (CCPE) de sua transferência em função da concessão da Feira Coberta do Padre Eustáquio (FECOPE). Indignados com a atitude arbitrária, pois não houve nenhum diálogo com a comunidade para expor essa transferência ou buscar ouvir as necessidades de acesso à cultura que a população viesse a expressar, esses usuários se organizaram no sendo de buscar manter atividades culturais e de entretenimento aqui na região, lembrando que o CCPE foi uma obra do Orçamento Participativo e que na época já existia há 11 anos nesse local.
A primeira ação foi o encaminhamento de uma carta aos vereadores com um Abaixo-assinado com mais de 500 assinaturas em que solicitávamos que a votação em segundo turno não aprovasse a concessão. Infelizmente, ela foi aprovada. A partir de então, buscamos um diálogo diretamente com os concessionários na mesma tentativa de preservar um espaço cultural aqui […] [texto na íntegra].
04/02/2021 Reunião com a PBH sobre CCPE Solicitação de reunião com arquitetos da Sudecap responsáveis por esse projeto.
24/02/2021 Reunião do Coletivo Cultural Noroeste com a FMC. Essa foi a primeira reunião entre o Coletivo e a FMC, desde o início do processo de Concessão e transferência do CCPE.
A fala inicial tanto da FMC quanto do Coletivo mostrou que ambos estavam alinhados. A nomeação de Diretores da FMC para acompanhar o processo de construção do CCPE foi resultado de reivindicação do Coletivo e foi essencial para que o novo CCPE possa vir a ter um olhar da cultura sobre o projeto arquitetônico uma vez que o Estudo Preliminar publicado no Edital apresenta diretrizes vagas e insuficientes, e que precisava de contribuições para ser aprimorado e garantir o melhor projeto possível dentro do orçamento previsto para o CCPE.
Todas as diretrizes arquitetônicas sugeridas pelo Coletivo foram encaminhadas ao arquiteto da PBH Ativos, Ficou combinado uma reunião entre os arquitetos, FMC, o Coletivo, a Concessionária para acompanhamento da obra do novo CCPE.
20/08/2021 – Agendada reunião com vereadores na busca de ações para fiscalização e intermediação da Concessão. É criado o site https://mercadosbh.wixsite.com/mercados com documentos e informações.
EXTRATO DO CONTRATO DE CONCESSÃO: 21 de março de 2022
EXTRATO DO CONTRATO DE CONCESSÃO
Nº PROCESSO ADMINISTRATIVO: 01.015746.20.61
Nº CONCORRÊNCIA: 001/2020
CONCEDENTE: Município de Belo Horizonte / Secretaria Municipal de Assistência Social, Segurança Alimentar e Cidadania CONCESSIONÁRIA: Uai Mais Doimo Conata Infracon SPE Ltda. – CNPJ 37.829.929/0001-38
OBJETO DO CONTRATO: Contrato de concessão para gestão, reforma, requalificação e manutenção do Mercado Distrital de Santa Tereza e da Feira Coberta do bairro Padre Eustáquio, localizados no Município de Belo Horizonte/MG e, a título de contrapartida, construção do novo Centro Cultural Padre Eustáquio.
VALOR DO CONTRATO: R$ 83.042.350,47 (oitenta e três milhões, quarenta e dois mil, trezentos e cinquenta reais e quarenta e sete centavos), que corresponde à soma das estimativas das receitas que poderão ser auferidas para CONCESSIONÁRIA durante o prazo da CONCESSÃO.
PRAZO DA CONCESSÃO: 25 (vinte e cinco) anos, contados a partir da emissão da ORDEM DE INÍCIO DA FASE 1.
DATA DA ASSINATURA DO CONTRATO: 21/03/2022
Belo Horizonte, 21 de março de 2022
DOM: https://dom-web.pbh.gov.br/visualizacao/edicao/6537
Prefeitura de Belo Horizonte assina contrato de concessão de Mercados Municipais (PBH, 21 mar. 2022)

CONTRATO DE CONCESSÃO: 21 de março de 2022
Contrato de concessão para a gestão, reforma, requalificação e manutenção do Mercado Distrital de Santa Tereza e da Feira Coberta do Bairro Padre Eustáquio, localizadas no Município de Belo Horizonte/MG e, a título de contrapartida, construção do novo Centro Cultural Padre Eustáquio.
Em 21 de março de 2022, a Secretaria Municipal de Assistência Social, Segurança Alimentar e Cidadania de Belo Horizonte e UAI Mais Doimo Conata Infracon SPE Ltda, assinaram o Contrato de Concessão.
7 PRAZO
7.1 O prazo de CONCESSÃO será de 25 anos, contados a partir da emissão da ORDEM DE INÍCIO DA FASE 1, admitida a sua eventual prorrogação na forma do CONTRATO e seus anexos e o estipulado em lei.
7.1.1 Em nenhuma hipótese, o prazo da CONCESSÃO poderá superar 35 (trinta e cinco) anos, já computados as prorrogações que forem feitas.
7.4 A CONCESSIONÁRIA terá 16 (dezesseis) meses a contar da EMISSÃO DA ORDEM DE INÍCIO DA FASE 2 para conclusão das obras e entrega do Novo Centro Cultural Padre Eustáquio, conforme estabelecido no CONTRATO e seus anexos. (p. 10)
7.5 A CONCESSIONÁRIA terá 19 (dezenove) meses a contar da EMISSÃO DA ORDEM DE INÍCIO DA FASE 2 para conclusão das obras e entre do equipamento Feira Coberta do bairro Padre Eustáquio, conforme estabelecido no CONTRATO e seus anexos.
7.6 A CONCESSSIONÁRIA deve garantir a não intervenção na área do CENTRO CULTURAL DO PADRE ESTÁQUIO até que o Novo Centro Cultural Padre Eustáquio seja entregue. (p. 10)
CAPÍTULO 5: DO VALOR DO CONTRATO, DO INVESTIMENTO, DO RESSARCIMENTO, DA REMUNERAÇÃO DA CONCESSIONÁRIA E DO PAGAMENTO DE OUTORGA (p. 19)
21. DO VALOR DO CONTRATO
21.1 O valor deste CONTRATO é de R$ 83.042.350,47 (oitenta e três milhões, quarenta e dois mil, trezentos e cinquenta reais e quarenta e sete centavos), que corresponde à soma das estimativas das receitas que poderão ser auferidas pela CONCESSIONÁRIA durante o prazo da CONESSÃO.
22. DO INVESTIMENTO (p. 19)
22.1 O valor total estimado do investimento é de R$ 13.304.816,46 (treze milhões e quatro mil, oitocentos e dezesseis reais e quarenta e sei centavos), que correspondem à som dos investimentos no Mercado Distrital de Santa Tereza no valor estimado de R$ 10.101.530,02 (dez milhões, cento e um mil, quinhentos e trinta reais e dois centavos), na Feira Coberta do bairro Padre Eustáquio no valor estimado de R$ 1.571. 822, 96 (um milhão, quinhentos e setenta e um mil, oitocentos e vinte e dois reais e noventa e seis centados) e …
… no Novo Centro Cultural Padre Eustáquio no valor estimado de R$ 1.631.463,48 (um milhão, seiscentos e trinta e um mil, quatrocentos e sessenta e três reais e quarenta e oito centavos).
CAPÍTULO VI – CONTRAPARTIDA DA CONCESSÃO (p. 181)
18. CONSTRUÇÃO DO NOVO CENTRO CULTURAL PADRE EUSTÁQUIO
18.1 Como contrapartida da CONCESSÃO, deve a CONCESSIONÁRIA construir o Novo Centro Cultural Padre Eustáquio, conforme diretrizes estabelecidas no Anexo III. 3 – DAS DIRETRIZES DE ANTEPROJETO ARQUITETÔNICO
18.2 A CONCESSIONÁRIA deve obrigatoriamente disponibilizar novo mobiliário compatível com as atividades do Novo Centro Cultural Padre Eustáquio, conforme detalhado no Anexo V – DIRETRIZES DE ANTEPROJETO ARQUITETÔNICO.
4 CENTRO CULTURAL PADRE EUSTÁQUIO – CCPE (p. 193)
4.1 Diretrizes obrigatórias
4.1.1 Atendimento à legislação urbanística do Município de Belo Horizonte, em especial à lei Municipal n. 11.181 de 8 de agosto de 2019 (Plano Diretor);
4.1.2 Acessibilidade Universal: contemplar soluções que propiciem acessibilidade universal a edificações, mobiliário, espaços e equipamento, em conformidade com NBR 9050 e em atendimento à legislação pertinente;
4.1.3 Instalação Sanitárias: dimensionamento do quantitativo de banheiros em conformidade com as normas técnicas pertinentes, considerando o fluxo de usuários previstos para o local, incluindo banheiros para portadores de necessidades especiais e mobilidade reduzida;
4.1.4 Duas salas para oficinas de arte e dança, com área mínima de 45,00m2 (quarenta e cinco metros quadrados);
4.1.5 Uma sala para oficina de música, com área mínima de 30,00 m2 (trinta metros quadrados);
4.1.6 Salão multiuso, com área mínima de 400,00 m2 (quatrocentos metros quadrados) com cobertura termo-acústica;
4.1.7 Área destinada às atividades administrativas do Centro Cultural, contemplando:
a) Três estações de trabalho;
b) Balcão de atendimento público;
c) Copa para funcionários;
4.1.8 Área destinada a instalação de 6 (seis) computadores para acesso público (lan house, informática); deve ser adjacente à área administrativa;
4.1.9 Área destinada a biblioteca de pequeno porte, com espaço de leitura/estudo para 6 (seis) pessoas; deve ser adjacente à área administrativa;
4.1.10 Área de depósito de materiais e equipamentos utilizados em eventos e atividades culturais;
4.1.11 Proposição de layout com detalhamento/descrição de mobiliário compatível com os usos das áreas de oficinas, administrativa, informática e biblioteca;
4.1.12 O uso racional de energia por meio do favorecimento na tipologia arquitetônica de ventilação e iluminação natural;
4.1.13 O sobreamento de fachadas;
4.1.14 O uso de luminárias e lâmpadas com alta eficiência lumínica, resultando em baixa potência instalada e garantia de conforto aos USUÁRIOS;
4.1.15 A priorização pelo uso de materiais recicláveis, sempre que possível, que diminuam desperdícios, resíduos na obra e que possam ser reaproveitados;
4.1.16 O dimensionamneto eficiente de instalação elétricas e hidráulicas e de sistemas estruturais, para evitar danos a equipamentos e desperdícios de materiais;
4.1.17 A utlização de equipamentos com sele de alta eficiência energética;
4.1.18 A captação e tratamento, sempre que possível, de água de chuva para reutilização em irrigação de jardins e bacias sanitárias;
4.1.19 A instalação de equipamentos economizadores de água nos banheiros;
4.1.20 O uso de mictórios secos ou com válvulas de acionamento de baixa vazão e fechamento automático;
ORDEM DE INÍCIO DA FASE 1:
8 de abril de 2022
ATO ADMINISTRATIVO: ORDEM DE INÍCIO DA FASE 1
Edição: 6495 | 1ª Edição | Ano XXVIII | Publicada em: 08/04/2022
SMASAC – Secretaria Municipal de Assistência Social, Segurança Alimentar e Cidadania
ORDEM DE INÍCIO DA FASE 1
Processo Nº 01.015746.20.61
Edital de Concorrência Nº 001/2020
Objeto: Contrato de concessão para gestão, reforma, requalificação e manutenção do Mercado Distrital de Santa Tereza e da Feira Coberta do bairro Padre Eustáquio, localizados no Município de Belo Horizonte/MG e, a título de contrapartida, construção do novo Centro Cultural Padre Eustáquio.
A Prefeitura de Belo Horizonte, por meio da Secretaria Municipal de Assistência Social, Segurança Alimentar e Cidadania – SMASAC, determina, a partir da data desta publicação, o início da Fase 1 da concessão para a gestão, reforma, requalificação e manutenção do Mercado Distrital de Santa Tereza e da Feira Coberta do bairro Padre Eustáquio, localizados no Município de Belo Horizonte/MG e, a título de contrapartida, construção do novo Centro Cultural Padre Eustáquio.
A partir desta data tem início a contagem dos seguintes prazos:
– 45 (quarenta e cinco) dias para apresentação do Plano de Transição Operacional – PTO para aprovação do PODER CONCEDENTE (subcláusula 5.1).
– 60 (sessenta) dias para apresentação do Programa de Intervenção para aprovação do PODER CONCEDENTE (subcláusula 5.5).
– 45 (quarenta e cinco) dias para entrega do Plano Preliminar de Manutenção Predial, do Plano Preliminar de Jardinagem e do Plano Preliminar de Limpeza (subcláusula 5.3).
– Prazo da concessão (25 anos) (subcláusula 7.1).
– 72 (setenta e dois) meses para o primeiro pagamento da outorga fixa anual (subcláusula 25.1).
Ao conhecimento da CONCESSIONÁRIA (UAI Mais Doimo Conata Infracon SPE Ltda – CNPJ: 37.829.929/0001-38)
Belo Horizonte, 05 de abril de 2022
DOM: https://dom-web.pbh.gov.br/visualizacao/ato/13081
22/04/2022 Solicitação de reunião com arquitetos e data da reunião do concessionário com a comunidade.
15/05/2022 Solicitação do contrato de concessão da FECOPE, assinado e não publicado.
05/08/2022 Reunião de formação do Comitê de Relações Comunitárias da FECOPE.

17/11/2022 Coletivo Cultural Noroeste se reune com a Secretária Municipal de Cultura e pauta o novo CCPE.
TERMO DE EMISSÃO DA POSSE: 10 de maio de 2023
Processo Nº 01.015746.20.61
Edital de Concorrência Nº 001/2020
Objeto: Contrato de concessão para gestão, reforma, requalificação e manutenção do Mercado Distrital de Santa Tereza e da Feira Coberta do bairro Padre Eustáquio, localizados no Município de Belo Horizonte/MG e, a título de contrapartida, construção do novo Centro Cultural Padre Eustáquio.
A Prefeitura de Belo Horizonte, por meio da Secretaria Municipal de Assistência Social, Segurança Alimentar e Cidadania – SMASAC, realiza emissão do TERMO DE IMISSÃO DA POSSE conforme subcláusula 7.2 do contrato de concessão para a gestão, reforma, requalificação e manutenção do Mercado Distrital de Santa Tereza e da Feira Coberta do bairro Padre Eustáquio, localizados no Município de Belo Horizonte/MG e, a título de contrapartida, construção do novo Centro Cultural Padre Eustáquio, cujo registro é de exclusiva responsabilidade da CONCESSIONÁRIA.
Ao conhecimento da CONCESSIONÁRIA (UAI MAIS DOIMO CONATA INFRACON SPE Ltda – CNPJ: 37.829.929/0001-38).
DOM: https://dom-web.pbh.gov.br/visualizacao/ato/417328
Após o Termo de Emissão da Posse, a concessionária passou a divulgar para a imprensa e asssociações de bairro o conceito da reformulação da Feira Coberta do Padre Eustáquo.
O projeto previa a construção de um segundo pavimento com praça de alimentação, para abacar no total 61 lojas e 76 boxes.


Fonte: Jornal do Padre Eustáquio






Projeto de Revitalização da FECOPE elaborado pela empresa Dávila Arquitetura.
FÓRUM CULTURAL NOROESTE – Reconhecido pelo COMUC
O Coletivo Cultural Noroeste BH passa a ser o Fórum Cultural Noroeste com o reconhecimento do Conselho Municipal de Política Cultural (COMUC).
RESOLUÇÃO COMUC N. 002/2023
Art. 1º – Fica constituído o fórum permanente de discussão das ações culturais da Regional Noroeste, denominado Fórum de Cultura da Regional Noroeste.
Art. 2º – O Fórum de Cultura da Regional Noroeste atuará em consonância com o Capítulo V da Resolução COMUC Nº 001/2021 do Conselho Municipal de Política Cultural que dispõe sobre o reconhecimento e a criação de colegiados consultivos setoriais e regionais, de duração permanente e que visam discutir e encaminhar questões relevantes ao Conselho.
Art. 3º – O Fórum é uma instância de participação popular franqueada a todos os interessados, nos termos do Regimento Interno do COMUC, Resolução COMUC Nº 001/2021.
Parágrafo único – Os participantes do Fórum não se caracterizam como agentes públicos para fins do disposto no art. 2º do Decreto Municipal 14.635/2011.
Fonte: DOM, 27 jun. 2023: https://dom-web.pbh.gov.br/visualizacao/ato/420293
2023 -Reuniões do Coletivo Cultural Noroeste para avaliação do projeto arquitetônico
1 de maio de 2023 – Apresentação do novo projeto arquitetônico CCPE
ORDEM DE INÍCIO DA FASE 2:
5 de maio de 2023
Processo Administrativo n. 01.015746.20-61
ATO ADMINISTRATIVO: TERMO DE EMISSÃO DA POSSE
Edição: 6756 | 1ª Edição | Ano XXIX | Publicada em: 10/05/2023
SMASAC – Secretaria Municipal de Assistência Social, Segurança Alimentar e Cidadania
TERMO DE EMISSÃO DA POSSE
Processo Nº 01.015746.20.61
Edital de Concorrência Nº 001/2020
Objeto: Contrato de concessão para gestão, reforma, requalificação e manutenção do Mercado Distrital de Santa Tereza e da Feira Coberta do bairro Padre Eustáquio, localizados no Município de Belo Horizonte/MG e, a título de contrapartida, construção do novo Centro Cultural Padre Eustáquio.
A Prefeitura de Belo Horizonte, por meio da Secretaria Municipal de Assistência Social, Segurança Alimentar e Cidadania – SMASAC, realiza emissão do TERMO DE IMISSÃO DA POSSE conforme subcláusula 7.2 do contrato de concessão para a gestão, reforma, requalificação e manutenção do Mercado Distrital de Santa Tereza e da Feira Coberta do bairro Padre Eustáquio, localizados no Município de Belo Horizonte/MG e, a título de contrapartida, construção do novo Centro Cultural Padre Eustáquio, cujo registro é de exclusiva responsabilidade da CONCESSIONÁRIA.
Ao conhecimento da CONCESSIONÁRIA (UAI MAIS DOIMO CONATA INFRACON SPE Ltda – CNPJ: 37.829.929/0001-38).
DOM: https://dom-web.pbh.gov.br/visualizacao/ato/417328
A Prefeitura de Belo Horizonte, por meio da Secretaria de Assistência Social, Segurança Alimentar e Cidadania – SMASAC, determina nesta data (05/05/2023) o início da Fase 2 da concessão para a gestão, reforma, requalificação e manutenção do Mercado Distrital de Santa Tereza e da Feira Coberta do bairro Padre Eustáquio, localizados no Município de Belo Horizonte/MG e, a título de contrapartida, construção do novo Centro Cultural Padre Eustáquio.
A partir desta data tem início a contagem dos seguintes prazos:
- 18 (dezoito) meses para conclusão das obras e entrega do equipamento Mercado Distrital de Santa Tereza (subcláusula 7.3).
- 16 (dezesseis) meses para conclusão das obras e entrega do Novo Centro Cultural Padre Eustáquio (subcláusula 7.4).
- 19 (dezenove) meses para conclusão das obras e entrega do equipamento Feira Coberta do bairro Padre Eustáquio (subcláusula 7.5).
EMISSÃO DE ALVARÁ DE CONSTRUÇÃO: 27 de fevereiro de 2025
O projeto arquitetônico do Novo CCPER foi apresentado e aprovado pela PBH. O documento, Alvará de Construção nº 202504700, foi emitido em 27/02/2025 e tem validade até 27/02/2029.
Fonte: Ouvidoria do Município – LAI Nº 31.00306500.3_2025-98
Projeto arquitetônico
Produção: Out. 2022
Licenciado em 27/02/2025
Processo: 31.00292988/2024-11
Alvará de Construção: 202504700
Data de atualização: 28/02/2025
6427-Centro Cultural Carlos Prates
Requerimento: 2023R17915
Processo/ BH Digital: 31.00292988/2024-11
Terreno
Regional Noroeste
Zona Fiscal: 104
Quarteirão: 163A
Lote: 014
Área total do terreno: 1.495,31 m²
Área Construída Bruta: 1.140,71 m²
PBH Edificações: https://urbano.pbh.gov.br/edificacoes/#/publico/projetos/290746
Pendente comunicado de início de obra.
APLICAÇÃO DE PENALIDADES ADMINISTRATIVAS: 17 de março de 2025
[…] ADVERTÊNCIA, em virtude da apresentação de documentação incompleta, apólices de seguro e Garantia de Execução do Contrato, solicitada pelo Poder Concedente, determinando, ainda, que seja entregue a documentação solicitada no prazo de 05 (cinco) dias úteis.
[…] ADVERTÊNCIA, em virtude da não apresentação de documentação, Alvará de Localização e Funcionamento (ALF) e Autos de Vistoria do Corpo de Bombeiros (AVCB), solicitada pelo Poder Concedente, determinando, ainda, que seja entregue a documentação solicitada no prazo de 05 (cinco) dias úteis.
[…] ADVERTÊNCIA, em virtude da não apresentação de documentação, ART de Instalação elétrica do Mercado Distrital de Santa Tereza, solicitada pelo Poder Concedente.
DOM: https://dom-web.pbh.gov.br/visualizacao/ato/460116
21/03/2025 – Hospital Sophia Feldmann construiu uma lavandeiria no lote do novo Centro Cultural
O Hospital Sophia Feldemann fez uma construção de uma lavanderia, ocupando o lote de propriedade da PBH destinado a construção do novo centro cultural. Além disso, o recipiente de resíduo infectante está sendo sendo depositado na área do lote.




12/06/2025 – REUNIÃO NA VILA SÃO FRANCISCO DAS CHAGAS
Na reunião da comissão local de cultura do CCPE, Encontros com a Cultura, de maio de 2025, contou com a presença de membros da comunidade São Francisco das Chagas, local onde será construído o novo centro cultual. Nessa reunião, foi deliberado que o Encontro de junho seria realizado na Vila São Francisco das Chagas para apresentar para a comunidade as atividades e o potencial do novo equipamento de cultura.
“Encaminhamentos:
Foi demandado que a próxima reunião da Comissão Local de Cultura do CCPE, no dia 12/06/2025, quinta, a partir das 19h, seja realizada na Vila São Francisco das Chagas, para estreitamento de laços da comunidade da Vila com o CCPE, o que foi prontamente acatado pela equipe do CCPE.”
Ata: https://nanquim.com.br/reuniao-comissao-local-ccpe/
Essa reunião que aconteceria na Vila também foi comunicada na 138ª Reunião Ordinária do COMUC, que aconteceu no dia 10 de junho de 2025.

Em julho, essa reunião aconteceu no galpão da Igreja São Francisco das Chagas, localizado na Vila, onde houve a presença de moradores que abraçaram e apoiaram a implementação do centro cultural. O encontro contou com a presença de servidores da FMC e do CCPE, do Fórum Cultural Noroeste, do Cine Clube Azteca e dos conselheiros do COMUC representantes da regional Noroeste.

A CONCESSIONÁRIA COMEÇA A ORGANIZAR UMA FEIRA, COM ATRAÇÕES MUSICAIS E COMEÇA A INTERFERIR NAS ATIVIDADES DO CCPE
17/07/2025 – Reunião com a FMC
Houve uma reunião do Comitê de Relações Comunitárias onde informou sobre a ocupação para realização de feira e informaram sobre atividades e funcionamento do CCPE que tem sido prejudicadas por essa feira.
A programçaão do CCPE passaram a ser prejudicadas pelo barulho. Também foi abordado o transtorno causado pelo barulho das obras de demolição na Fecope. O Encontro de Forrozeiros foi cancelado devido ao surgimento dessa feira.
O Coletivo denuncia que a ocupação do estacionamento do CCPE está em desacordo com o Edital e o Contrato, que rezam que o funcionamento do CCPE não poder ser prejudicado e que seu espaço físico deve ser preservado até que seja construído o novo CCPE e ele seja transferido.
Além disso, a Concessionária quebrou o limite de grade que separava o estacionamento do CCPE da praça da Fecope e tomou posse do estacionamento. Em consulta a SMSAN, o retorno é que a posse do lugar era uma imposição contratual.
Houve questionamento, porque o estacionamento sempre foi usado pela CCPE e fazia parte do escopo do OP na construção do centro cultura.
NOVA COMISSÃO DE FISCALIZAÇÃO
11 /10/2025
PORTARIA: PORTARIAS SMSAN Nº 131/2025 e 132/2025
Edição: 7361 | 1ª Edição | Ano XXXI | Publicada em: 11/10/2025
SMSAN – Secretaria Municipal de Segurança Alimentar e Nutricional
PORTARIA SMSAN Nº 131/2025
Institui a Comissão de Fiscalização de Contrato de Concessão do Mercado Distrital de Santa Tereza e do Mercado Distrital do Padre Eustáquio.
A Secretária Municipal de Segurança Alimentar e Cidadania, no uso da atribuição que lhe confere o inciso III do parágrafo único do art. 112 da Lei Orgânica, e nos termos do Decreto nº 18.960, de 30 de janeiro de 2025,
RESOLVE:
Art. 1º – Fica instituída a Comissão de Fiscalização de Contrato de Concessão para gestão, reforma, requalificação e manutenção do Mercado Distrital de Santa Tereza e do Mercado Distrital do Padre Eustáquio, do Município de Belo Horizonte, e a título de contrapartida, a construção do Novo Centro Cultural Padre Eustáquio, Processo Administrativo: 01.015746.20.61, Concorrência nº 001/2020, cuja empresa contratada é o Consórcio UAI MAIS DOIMO CONATA INFRACON SPE LTDA.
Art. 2º – Ficam designados os seguintes membros para comporem a Comissão de Fiscalização:
I – Pedro de Carvalho Guadalupe – BM/Mat.: St 002706-6 (titular), vago (suplente) – SUDECAP;
II – Laura Fernandes Tomaz- BM/Mat: 0323384-5 e Moisés Silva Alves, BM/Mat.: 79.778-6 (titulares), Cláudia Linari Pereira – BM/Mat.: 104.542-1 (suplente)- SMPU;
III – Frederico Diniz Oliveira – BM/Mat.: 000232-5 (titular) e Nilson Gonçalves de Oliveira – BM.Mat.: 000263-5 (suplente) – FMC/SMC.
Art. 3º – Ficam designados os seguintes servidores para exercer as funções operacionais de Fiscal e Fiscal Substituto do Contrato de Concessão:
I – Fiscal: Maria Lúcia da Silva – BM/Mat.: 45.237-1 – SMSAN;
II – Fiscal Substituto: Tatiane Maria dos Reis – BM: 97.689-3 – SMSAN.
Art. 4º – A atuação da Comissão observará as diretrizes estabelecidas no Capítulo Três do Contrato de Concessão – Diretrizes e Obrigações das Partes.
Art. 5º – O recebimento do serviço será atestado por, no mínimo, dois membros da Comissão.
Art. 6º – É responsabilidade de todos os membros dessa Comissão a análise das informações com vistas a efetiva fiscalização do Contrato de Concessão.
Art. 7º – Fica revogada a Portaria SMASAC Nº 241/2024, de 25 de outubro de 2024.
Art. 8º – Esta Portaria entra em vigor na data da sua publicação.
Belo Horizonte, 8 de outubro de 2025
Darklane Rodrigues Dias
DOM: https://dom-web.pbh.gov.br/visualizacao/ato/470617
29/10/2025 – Reunião com FMC sobre elaboração de ADITIVO
O alvará de construção do novo CCPE teve atrasos por questões técnicas ordinárias.
Foi informado que a PBH estáva elaborando um aditivo para viabilizar a construção. A PBH criou um Grupo de Trabalho com os setores: Comissão de Fiscalização da Concessão, Secretaria de Saúde, PBH Ativos, SMSAN, SMC, FMC, Regulação Urbana, Direitos Humanos e Cidadania. Entre as opções do aditivo que estavam sendo estudadas, está a proposta de se fazer uma reforma no atual CCPE e uma construção de uma bebeteca e um cineclube no lote do Carlos Prates.
Comentou-se sobre a informação de que o Hospital Sofia Feldemann tinha um projeto de construir uma UTI Neonatal em sua unidade no Carlos Prates e a possibilidade do barulho das atividades do novo centro cultural interferir nessa futura atividade.
Foi criado um Grupo de Operação entre concessionária, SMSAN e FMC com objetivo de diminuir os impactos que a concessionária tem causado no funcionamento do CCPE.
ATO ADMINISTRATIVO: DECISÃO DA ANÁLISE RECURSAL – PROCESSO DE PENALIDADE Nº 01-006.312/25-85 – CONCORRÊNCIA Nº 001/2020
Edição: 7386 | 1ª Edição | Ano XXXI | Publicada em: 18/11/2025
SMSAN – Secretaria Municipal de Segurança Alimentar e Nutricional
DECISÃO DA ANÁLISE RECURSAL
PROCESSO DE PENALIDADE Nº 01-006.312/25-85
CONCORRÊNCIA Nº 001/2020
A Subsecretaria de Planejamento Gestão e Finanças – SUPGF-SAN, no uso de suas atribuições legais, amparada pelo disposto no art. 87 da Lei Federal nº 8.666/93, bem como no Decreto Municipal nº 15.113/13, decide pelo não provimento do recurso interposto pela empresa UAI MAIS DOIMO CONATA INFRACON SPE LTDA – CNPJ nº 37.829.929/0001-38, mantendo-se a sanção contratual aplicada pela Diretoria de Licitações e Contratos, com fundamento no subitem 37.2, “a”, do Contrato, ficando a recorrente ciente de que será dado prosseguimento à apuração da multa decorrente do não cumprimento do prazo estabelecido na penalidade publicada no Diário Oficial em 17/04/2025.
Belo Horizonte, 17 de novembro de 2025
DOM: https://dom-web.pbh.gov.br/visualizacao/ato/473062
37.2 O cometimento de infração de natureza média ensejará a aplicação das seguintes penalidades, cumulativamente:
a) advertência por escrito, que será formulada, quando for o caso, junto à determinação da adoção de medidas necessárias de correção; e
b) multa, em caso de não correção no prazo estipulado na advertência, no valor de 5% (cinco por cento) do valor da OUTORGA FIXA ANUAL.
Audiência Pública: 19 de novembro de 2025
Os vereadores Dr. Bruno Pedralva (PT), Luiza Dulci (PT) e Pedro Patrus (PT) solicitaram audiência pública nesta quarta-feira (19/11), às 9h, no Plenário Helvécio Arantes, para debater a construção do novo Centro Cultural Padre Eustáquio. A obra é uma contrapartida prevista em edital da Prefeitura de BH e ainda não teria iniciado. A reunião vai acontecer na Comissão de Educação, Ciência, Tecnologia, Cultura, Desporto, Lazer e Turismo, e deve contar com a presença de representantes do Executivo municipal e de coletivos culturais. Interessados podem acompanhar a reunião presencialmente ou por meio de transmissão ao vivo no portal ou canal da Câmara no Youtube.



Comunidade denuncia uso irregular de equipamento cultural no Padre Eustáquio: Concessionária responsável pela gestão da Feira Coberta estaria descumprindo regras de contrato e inviabilizando atividades
“O Edital de Concorrência 001/2020 da Prefeitura de Belo Horizonte determina a construção de um novo centro como contrapartida à concessão da gestão da Feira Coberta (Fecope), que divide o espaço com o equipamento. No entanto, as obras ainda não foram iniciadas e a comunidade denuncia que as atividades da feira têm inviabilizado o funcionamento do centro cultural” (CMBH, 19 nov. 2025).
Na reunião foi confirmada a informação de que um ADITIVO estava em estudo, mas que nenhuma decisão ainda havido decidida pela PBH.
27/11/2025 – Reunião com SMC e FMC
A comunidade rejeita a solução de reforma do atual CCPE pois a convivência com as atividades da concessionária têm asfixiado o CCPE impedindo seu pleno funcionamento e reivindica a construção de um novo CCPE no bairro Carlos Prates como previsto no Edital de Concessão como também um novo Centro Cultural no antigo Aeroporto Carlos Prates.
MOÇÃO VIII CONFERÊNCIA MUNICIPAL DE CULTURA DE BELO HORIZONTE
30/11/2025
Aprovada em Plenária Final da Conferência a moção de apoio em favor da construção do novo centro cultural:
- Moção de Apoio à Construção do Novo Centro Cultural de acordo com o Edital 001/2020: O edital homologado em setembro de 2020 prevê a concessão da Feira Coberta Padre Eustáquio, tendo como contrapartida a construção do novo Centro Cultural Padre Eustáquio no terreno da Rua Padre Eustáquio 120 – Bairro Carlos Prates, beneficiando a comunidade da Vila São Francisco, Carlos Prates e toda a Região Noroeste. Entretanto, o empreendimento corre o risco de não ser construído. Diante disso, torna-se necessário que a Prefeitura de Belo Horizonte, a Secretaria de Segurança Alimentar e Nutricional (gestora do contrato), Secretaria Municipal de Cultura, junto à Fundação Municipal de Cultura, e a sociedade civil organizada encontrem uma solução que garanta a ocupação cultural do terreno, preservando o direito da comunidade a esse importante equipamento público.
Fonte: https://dom-web.pbh.gov.br/visualizacao/anexoato/29515
23/12/2025 – Reunião com a SMSAN
Objetivo: Dialogar sobre a celebração de aditivo, que está em tramitação a pedido da
concessionária, no âmbito da Concessão no 001/2020. Desejam que este estudo técnico
para a produção do aditivo escute as necessidades da comunidade antes que qualquer
decisão seja tomada pela PBH. Desejam ter a oportunidade de apresentarem suas pautas e reivindicações, para que a melhor solução e decisão aconteça em conjunto com a sociedade.
A possibilidade da reforma do atual CCPE está afastada por não atender à demanda da sociedade civil que mostra a incompatibilidade de convívio entre as atividades feirantes da concessionária e as culturais do CCPE;
A SMSAN vai atender à solução de local para a construção do novo CCPE que a área da Cultura (FMC) apresentar, seja no lote previsto no Edital ou outro a ser apresentado e compatível
Agendamentos de reuniões periódicas com início em fevereiro para encontrar a solução.
Pintura do muro: CENTRO CULTURAL CARLOS PRATES
3/1/2026
Pintura simbólica do muro, marcando o espaço da construção como: CENTRO CULTURAL CARLOS PRATES




POR QUE CENTRO CULTURAL CARLOS PRATES?
Na defesa da construção do novo centro cultural, a ação da pintura do muro nomeou o local como CENTRO CULTURAL CARLOS PRATES.
Os motivos:
CENTRO CULTURAL NO ANTIGO AEROPORTO DA PAMPULHA
Em paralelo a questão da Concessão da FECOPE, a Fórum passou a defender a construção de um centro cultural no espaço do antigo Aeroporto Carlos Prates. O aerporto foi fechado e em seu lugar, programado a construção de um conjunto habitacional. Em diálogo com a Prefeitura e Governo Federal, se aprovou um centro cultural que ficaria a poucos metros da FECOPE. Desta forma, os usuários da cultura da Feira Coberta continuariam a ter um espaço de cultura próxima da região. A proposta também foi aprovada na 8ª Conferência Municipal de Cultura de Belo Horizonte, acontecida em 2025 e agora faz parte do PLANO DE CULTURA 2026-2035:
PROPOSTAS APROVADAS EIXO 5 – INFRAESTRUTURA, EQUIPAMENTOS E ESPAÇOS CULTURAIS
2 – Criar um Centro Cultural no antigo aeroporto Carlos Prates, com concha acústica para eventos culturais.
Desta forma, ali ficaria instalado o novo Centro Cultural Padre Eustáquio.
CENTRO CULTURAL CARLOS PRATES
Além do bairro Carlos Prates, o novo equipamento cultural, que será construído pela concessão da FECOPE, vai ser instalado no mesmo local onde era o espaço do Cine Azteca. Então foi pensada na homenagem ao importante cineastra e diretor mineiro Carlos Alberto Prates Correia (1941-2023) que dirigiu as obras O Milagre de Lourdes (1965), Os Marginais (1968), Crioulo Doido (1970 – Vencedor de melhor roteiro Festival de Inverno da UFMG), Perdida (1970), Cabaret Mineiro (1981 – Vencedor do Festival de Gramado), Noites do Sertão (1983 – Vencedor do Festival de Gramado), Minas-Texas (1989 – Vencendro do Festival de Brasília) e Castelar e Nelson Dantos no País dos Generais (2007 – Vencedor do Festival de Gramado). Na década de 1960, fundou o Centro Mineiro de Cinema Experimental (CEMICE) em Belo Horizonte. Em 1966, muda-se para o Rio de Janeiro, o pólo cinematrográfico do país na época e trabalha na adaptação Macunaíma (1969) e na produtação de Os Inconfidentes (1972) e Vai Trabalhar, Vagabundo (1973), entre outras obras.

REFERÊNCIAS
ARREGUY, Cintia A. C.; RIBEIRO, Raphael R. Histórias de bairros [de] Belo Horizonte: Regional Noroeste. Belo Horizonte: APCBH; ACAP-BH, 2008. Disponível em: http://www.pbh.gov.br/historia_bairros/NoroesteCompleto.pdf.
CAMARA MUNICIPAL DE BELO HORIZONTE. Comerciantes da Feria do Padre Estáquio estão temerosos, 10 abr. 2006. Disponível em: https://www.cmbh.mg.gov.br/comunica%C3%A7%C3%A3o/not%C3%ADcias/2006/04/comerciantes-da-feira-do-padre-eust%C3%A1quio-est%C3%A3o-temerososa-feira-coberta
FERNANDES, Regina Rita Lazzarotti. A gente não quer só comida!: um estudo de caso sobre o Centro Cultural Padre Eustáquio. Monografia (Graduação em Turismo) – Instituto de Geociências, Universidade Federal de Minas Gerais, Belo Horizonte, 2009.
FOLHA DO PADRE EUSTÁQUIO. Feira Coberta: uma história de 30 anos. Belo Horizonte, Folha do Padre Eustáquio, 18 mar. 2006.
GRECO, Luísa Lopes. Movimentações e ressonâncias: uma análise organizacional da Feira Coberta do Padre Eustáquio. Dissertação (Mestrado em Arquitetura e Urbanismo) – Escola de Arquitetura e Urbanismo, Universidade Federal de Minas Gerais, Belo Horizonte, 2022. Disponível em: https://repositorio.ufmg.br/server/api/core/bitstreams/1570d56e-8a27-495a-b4aa-e36c22ffcf24/content
OLIVEIRA, Fátima. Espaço Compartilhado. Jornal Diário da Tarde. Belo Horizonte: Diário Associados, 18 mar. 2006.
PRATA, Hélio Eustáquio Vidal Prata. Estudo de usuários da Biblioteca do Centro Cultural Padre Eustáquio. Monografia (Especialização) – Escola de Ciências Sociais, Universidade Federal de Minas Gerais. Belo Horizonte, 2012.
SOUSA, Lays Silva de. Viver e comer na cidade: políticas públicas para o abastecimento alimentar em Belo Horizonte (século XX). Dissertação (Mestrado em História) – Faculdade de Filosofica e Ciências Humanas, Universidade Federal de Minas Gerais, Belo Horizonte, 2020. Disponível em: https://repositorio.ufmg.br/items/beaf704a-78b0-4b2e-9f26-99c7f3e080ea.
